| 価格 | 1,980万円 ![]() |
||||
|---|---|---|---|---|---|
| 所在地 | 愛知県蒲郡市宮成町 1-6 ※地図上でピンがズレる可能性がございます。 この地域周辺の物件を見る |
専有面積 | 88.5u | ||
| 交通 |
JR東海道本線 蒲郡 徒歩17分
|
管理費等 | 7,000円 | 修繕積立金 | 9,300円 | 所在階/階数 | 13階/地上13階建 | 築年月 | 2002年10月築 | バルコニー面積 | - |
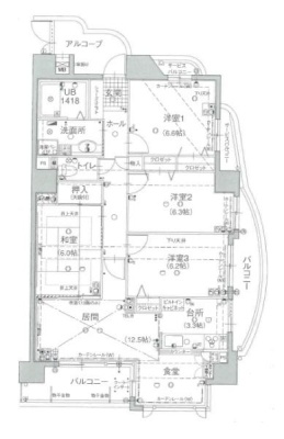
| 間取り | 4LDK (-) | ||||
電話をかける(携帯・PHS可)
0533-95-5021
「ホームページを見た」とお伝え下さい。
問合せ番号の下4桁をお伝え下さい
RHS-163704-793
| 特徴 |
|
|---|---|
| セールスコメント | ●中央小学校:約910m(徒歩12分)●蒲郡中学校:約1110m(徒歩14分) |
| 採光面 | 南 | 取引態様 | 専任媒介 |
|---|---|---|---|
| 現況 | 空室 | 引渡し | 相談 |
| 総戸数 | 36戸 | 構造 | RC造 |
| テラス面積 | - | 専用庭面積 | - |
| 駐車場 | 有:5,500円/月 | 駐輪場 | - |
| 建物権利 | - | 土地権利 | 所有権 |
| 用途地域 | 準工業地域 - - | 管理態様 | 管理形態:委託(通勤) 管理組合:なし 管理会社:合人社計画研究所 |
| 情報更新日 | 2026年04月28日 | 次回更新日 | 2026年05月12日 |
電話をかける(携帯・PHS可)
0533-95-5021
「ホームページを見た」とお伝え下さい。
問合せ番号の下4桁をお伝え下さい
RHS-163704-793
| 価格 | 万円 | ||
|---|---|---|---|
| 年利率 | % |
||
| ボーナス払い | 返済年数 | ||
| 頭金 | 直接入力する | 万円 | |

毎月のご返済額 |
ボーナス(×年2回) |
物件価格1,980万円 |
電話でお問い合わせ
中央不動産 豊川・豊橋店
|
電話をかける 0533-95-5021 ※「ホームページを見た」とお伝えください。 |
問合せ番号の下4桁をお伝え下さい RHS-163704-793 |
|---|
〒434-0042
静岡県浜松市浜名区小松3180番地
TEL:0120-684-021
FAX:053-584-0024
定休日:水曜・年末年始・GW
〒422-8058
静岡県静岡市駿河区中原364-1
TEL:0120-739-021
FAX:054-286-0061
定休日:火曜・水曜・年末年始・GW
〒438-0818
静岡県磐田市下万能152番地
TEL:0120-390-540
FAX:0538-39-0503
定休日:火曜・水曜・年末年始・GW
〒442-0005
愛知県豊川市本野ヶ原3丁目19-1
TEL:0120-028-021
FAX:0533-95-5022
定休日:火曜・水曜・年末年始・GW
〒425-0072
静岡県焼津市大住327-3
TEL:0120-850-021
FAX:054-629-0031
定休日:火曜・水曜・年末年始・GW
〒416-0931
静岡県富士市蓼原87-1
TEL:0120-900-021
FAX:0545-65-0061
定休日:火曜・水曜・年末年始・GW
上階の生活音を気にすることなく、静かで穏やかな時間をお過ごしいただけます。
心地よい海風を感じられる特別感のあるお部屋です。