| 価格 | 2,280万円 ![]() |
||||
|---|---|---|---|---|---|
| 所在地 | 静岡県富士市増川 1142-1 ※地図上でピンがズレる可能性がございます。 この地域周辺の物件を見る |
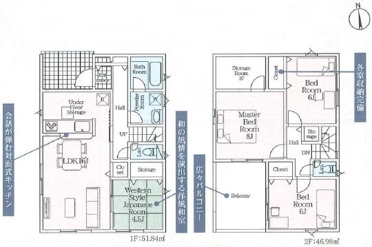
土地面積 | 166.01m² (50.22坪) | 建物面積 | 98.82u |
| 築年月 | 2026年2月築 | 間取り | 4SLDK (LDK16/和室4.5/洋室8/洋室6/洋室6/S3) | ||
| 交通 |
岳南電車 岳南江尾 徒歩11分
|
||||
電話をかける(携帯・PHS可)
0120-900-021
「ホームページを見た」とお伝え下さい。
問合せ番号の下4桁をお伝え下さい
RHS-163706-153
| 特徴 |
|
|---|---|
| セールスコメント | - |
| 採光面 | - | 構造/階数 | 木造/地上2階建 |
|---|---|---|---|
| 建ぺい率 | 60(%) | 容積率 | 160(%) |
| 駐車場 | 有 | 現況/引渡し | 新築/相談 |
| 土地権利 | 所有権 | 私道負担面積 | - |
| 接道状況 | 接道: 北 公道 道路幅: 4.3m | 用途地域 |
第一種住居地域
|
| セットバック | - | 法令上の制限 | 高度地区;文化財保護法;宅地造成工事規制区域 |
| 地目 | 宅地 | 地勢 | |
| 建築確認番号 | 都市計画 | 市街化区域 | |
| 取引態様 | 仲介 | ||
| 情報更新日 | 2026年05月02日 | 次回更新日 | 2026年05月16日 |
電話をかける(携帯・PHS可)
0120-900-021
「ホームページを見た」とお伝え下さい。
問合せ番号の下4桁をお伝え下さい
RHS-163706-153
| 価格 | 万円 | ||
|---|---|---|---|
| 年利率 | % |
||
| ボーナス払い | 返済年数 | ||
| 頭金 | 直接入力する | 万円 | |

毎月のご返済額 |
ボーナス(×年2回) |
物件価格2,280万円 |
![]() |
![]() |
富士市増川 1142-1
2030万円〜2350万円 |
電話をかける(携帯・PHS可)
0120-900-021
「ホームページを見た」とお伝え下さい。
問合せ番号の下4桁をお伝え下さい
RHS-163706-153
〒434-0042
静岡県浜松市浜名区小松3180番地
TEL:0120-684-021
FAX:053-584-0024
定休日:水曜・年末年始・GW
〒422-8058
静岡県静岡市駿河区中原364-1
TEL:0120-739-021
FAX:054-286-0061
定休日:火曜・水曜・年末年始・GW
〒438-0818
静岡県磐田市下万能152番地
TEL:0120-390-540
FAX:0538-39-0503
定休日:火曜・水曜・年末年始・GW
〒442-0005
愛知県豊川市本野ヶ原3丁目19-1
TEL:0120-028-021
FAX:0533-95-5022
定休日:火曜・水曜・年末年始・GW
〒425-0072
静岡県焼津市大住327-3
TEL:0120-850-021
FAX:054-629-0031
定休日:火曜・水曜・年末年始・GW
〒416-0931
静岡県富士市蓼原87-1
TEL:0120-900-021
FAX:0545-65-0061
定休日:火曜・水曜・年末年始・GW
【須津小学校・須津中学校】駅まで徒歩11分 4SLDK LDK16帖