| 価格 | 2,680万円 ![]() |
||||
|---|---|---|---|---|---|
| 所在地 | 静岡県磐田市豊浜中野 521-1 ※地図上でピンがズレる可能性がございます。 この地域周辺の物件を見る |
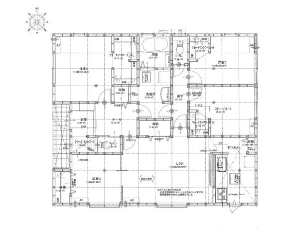
土地面積 | 247.92m² (75坪) | 建物面積 | 96.05u |
| 築年月 | 2026年1月築 | 間取り | 3LDK (LDK16/洋室7/洋室5.1/洋室4.5) | ||
| 交通 |
JR東海道本線 磐田 豊浜 バス22分 停歩4分
|
||||
電話をかける(携帯・PHS可)
0120-390-540
「ホームページを見た」とお伝え下さい。
問合せ番号の下4桁をお伝え下さい
RHS-163702-7517
| 特徴 |
|
|---|---|
| セールスコメント | 豊浜小学校:約270m(徒歩4分) 福田中学校:約3900m(自転車約16分) |
| 採光面 | 南 | 構造/階数 | 木造/地上1階建 |
|---|---|---|---|
| 建ぺい率 | 60(%) | 容積率 | 200(%) |
| 駐車場 | 有 | 現況/引渡し | 建築中/- |
| 土地権利 | 所有権 | 私道負担面積 | - |
| 接道状況 | 接道: 西 公道 道路幅: 10m 接道: 北 公道 道路幅: 5m |
用途地域 |
第一種住居地域
|
| セットバック | - | 法令上の制限 | 都市計画区域内、法第22条区域、下水道区域内、宅地造成等工事規制区域、特別工業地区 |
| 地目 | 宅地 | 地勢 | 平坦 |
| 建築確認番号 | 第KS125-0410-55419号 | 都市計画 | 市街化区域 |
| 取引態様 | 仲介 | ||
| 情報更新日 | 2026年01月20日 | 次回更新日 | 2026年02月03日 |
電話をかける(携帯・PHS可)
0120-390-540
「ホームページを見た」とお伝え下さい。
問合せ番号の下4桁をお伝え下さい
RHS-163702-7517
| 価格 | 万円 | ||
|---|---|---|---|
| 年利率 | % |
||
| ボーナス払い | 返済年数 | ||
| 頭金 | 直接入力する | 万円 | |

毎月のご返済額 |
ボーナス(×年2回) |
物件価格2,680万円 |
![]() |
![]() |
磐田市豊浜中野 521-1
2680万円〜2880万円 |
電話をかける(携帯・PHS可)
0120-390-540
「ホームページを見た」とお伝え下さい。
問合せ番号の下4桁をお伝え下さい
RHS-163702-7517
〒434-0042
静岡県浜松市浜名区小松3180番地
TEL:0120-684-021
FAX:053-584-0024
定休日:水曜・年末年始・GW
〒422-8058
静岡県静岡市駿河区中原364-1
TEL:0120-739-021
FAX:054-286-0061
定休日:火曜・水曜・年末年始・GW
〒438-0818
静岡県磐田市下万能152番地
TEL:0120-390-540
FAX:0538-39-0503
定休日:火曜・水曜・年末年始・GW
〒442-0005
愛知県豊川市本野ヶ原3丁目19-1
TEL:0120-028-021
FAX:0533-95-5022
定休日:火曜・水曜・年末年始・GW
〒425-0072
静岡県焼津市大住327-3
TEL:0120-850-021
FAX:054-629-0031
定休日:火曜・水曜・年末年始・GW
〒416-0931
静岡県富士市蓼原87-1
TEL:0120-900-021
FAX:0545-65-0061
定休日:火曜・水曜・年末年始・GW
3SLDK、平屋建て!
ウォークインクローゼットなどついて収納豊富!