愛知県 豊川市 JR飯田線 新築一戸建て|浜松市・磐田市・静岡市・焼津市・藤枝市・豊川市・豊橋市の不動産はセンチュリー21中央不動産

TOPページ >
物件検索 >
不動産情報一覧

愛知県 豊川市 JR飯田線 新築一戸建ての検索結果一覧

種別で絞り込む 新築一戸建て 中古一戸建て 中古マンション 土地 投資用
11件中1〜11件を表示
表示件数 並び順
新築一戸建て

飯田線「江島」駅まで車で約4分♪ 和室4.5帖がある4LDK+テレワークルーム3帖付き、2階建て! 駐車スペース4台!

価格 1,990万円 
所在地 愛知県豊川市江島町下ノ郷 8-5
交通 JR飯田線 江島駅 徒歩25分
間取り 4LDK
建物面積 98.81u 土地面積 187.33u
築年月 2026年2月 建物構造 一戸建て/木造
11枚  
新築一戸建て

徒歩圏内に生活施設が揃っているエリア♪ 全室フローリング、3LDK、2階建て、駐車スペース2台! 長期優良住宅認定、省エネ性能ラベルあり!

価格 2,590万円 
所在地 愛知県豊川市本野町西浦 31番1の一部
交通 JR飯田線 豊川駅 徒歩35分
間取り 4LDK
建物面積 81.97u 土地面積 129.13u
築年月 2026年3月 建物構造 一戸建て/木造
17枚  
新築一戸建て

♪当店でご成約のお客様へリビングエアコンプレゼント♪ 4LDK+WIC パントリー付き、2階建て♪ 駐車スペース並列2台。

価格 2,680万円 
所在地 愛知県豊川市小坂井町樫王 69
交通 JR飯田線 小坂井駅 徒歩4分
間取り 4LDK
建物面積 101.85u 土地面積 145.30u
築年月 2026年5月 建物構造 一戸建て/木造
3枚  
新築一戸建て

♪当店でご成約のお客様へリビングエアコンプレゼント♪ 4LDK+WIC×3+SC パントリー付き、2階建て♪ 駐車スペース並列2台。

価格 2,680万円 
所在地 愛知県豊川市小坂井町樫王 69
交通 JR飯田線 小坂井駅 徒歩4分
間取り 4LDK
建物面積 99.36u 土地面積 147.44u
築年月 2026年5月 建物構造 一戸建て/木造
3枚  
新築一戸建て

徒歩圏内に生活施設が揃っているエリア♪ シューズインクローゼット付き全室フローリング、4LDK、2階建て、駐車スペース2台! 長期優良住宅認定、省エネ性能ラベルあり

価格 2,690万円 
所在地 愛知県豊川市本野町西浦 31番1の一部
交通 JR飯田線 豊川駅 徒歩35分
間取り 4LDK
建物面積 95.23u 土地面積 146.30u
築年月 2026年3月 建物構造 一戸建て/木造
18枚  
新築一戸建て

豊川市東豊町2丁目の新築戸建て! 新築ならではの充実した設備で快適な新生活をサポートします! 静かで落ち着いた住環境で新生活を始めてみませんか?

価格 2,770万円 
所在地 愛知県豊川市東豊町2丁目 42・43・44・45
交通 JR飯田線 豊川駅 徒歩11分
間取り 3LDK
建物面積 97.72u 土地面積 123.35u
築年月 2026年5月 建物構造 一戸建て/木造
3枚  
新築一戸建て

♪当店でご成約のお客様へリビングエアコンプレゼント♪ 4LDK+WIC+SC パントリー付き、2階建て♪ 駐車スペース並列2台。

価格 2,780万円 
所在地 愛知県豊川市小坂井町樫王 69
交通 JR飯田線 小坂井駅 徒歩4分
間取り 4LDK
建物面積 99.78u 土地面積 177.31u
築年月 2026年5月 建物構造 一戸建て/木造
3枚  
新築一戸建て

徒歩圏内に生活施設が揃っているエリア♪ 和室のある4LDK、2階建て、駐車スペース2台! 長期優良住宅認定、省エネ性能ラベルあり!

価格 2,990万円 
所在地 愛知県豊川市本野町西浦 31番1の一部
交通 JR飯田線 豊川駅 徒歩35分
間取り 4LDK
建物面積 97.7u 土地面積 129.91u
築年月 2026年3月 建物構造 一戸建て/木造
19枚  
新築一戸建て

全室フローリング4LDK+ウォークインクローゼット×2、4LDK、2階建て! 駐車スペース3台あり! バルコニーが2部屋に付いています♪

価格 3,180万円 
所在地 愛知県豊川市下長山町堺 65-12
交通 JR飯田線 牛久保駅 徒歩13分
間取り 4LDK
建物面積 100.62u 土地面積 132.24u
築年月 2026年6月 建物構造 一戸建て/木造
7枚  
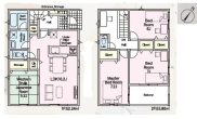
新築一戸建て

徒歩圏内に生活施設が揃っているエリア♪ ウォークインクローゼットがある5LDK、2階建て、駐車スペース3台! 長期優良住宅認定、省エネ性能ラベルあり!

価格 3,190万円 
所在地 愛知県豊川市本野町西浦 31番1の一部
交通 JR飯田線 豊川駅 徒歩35分
間取り 5LDK
建物面積 105.99u 土地面積 138.04u
築年月 2026年3月 建物構造 一戸建て/木造
16枚  
 
新築一戸建て

【新築5LDK】豊川市幸町の利便性が高い商業地域。 部屋数豊富なゆとりの設計に、大型ウォークインクローゼットを採用しました 通勤・通学に便利な立地で叶える充実の生活

価格 3,280万円 
所在地 愛知県豊川市幸町 87
交通 JR飯田線 豊川駅 徒歩12分
間取り 5LDK
建物面積 105.8u 土地面積 139.76u
築年月 2026年3月 建物構造 一戸建て/木造
3枚  
表示件数 並び順


  • 住所から探す
  • 学区から探す

会社情報
COMPANY

センチュリー21浜松店

センチュリー21
中央不動産株式会社 浜松店

〒434-0042
静岡県浜松市浜名区小松3180番地
TEL:0120-684-021
FAX:053-584-0024
定休日:水曜・年末年始・GW

センチュリー21中央不動産静岡店

センチュリー21
中央不動産株式会社 静岡店

〒422-8058
静岡県静岡市駿河区中原364-1
TEL:0120-739-021
FAX:054-286-0061
定休日:火曜・水曜・年末年始・GW

センチュリー21磐田店

センチュリー21
中央不動産株式会社 磐田店

〒438-0818
静岡県磐田市下万能152番地
TEL:0120-390-540
FAX:0538-39-0503
定休日:火曜・水曜・年末年始・GW

センチュリー21豊川・豊橋店

センチュリー21
中央不動産株式会社 豊川・豊橋店

〒442-0005
愛知県豊川市本野ヶ原3丁目19-1
TEL:0120-028-021
FAX:0533-95-5022
定休日:火曜・水曜・年末年始・GW

センチュリー21焼津・藤枝店

センチュリー21
中央不動産株式会社 焼津・藤枝店

〒425-0072
静岡県焼津市大住327-3
TEL:0120-850-021
FAX:054-629-0031
定休日:火曜・水曜・年末年始・GW

センチュリー21富士店

センチュリー21
中央不動産株式会社 富士店

〒416-0931
静岡県富士市蓼原87-1
TEL:0120-900-021
FAX:0545-65-0061
定休日:火曜・水曜・年末年始・GW

会社概要
お知らせ
お客様の声

お客様へ

豊川市 JR飯田線 不動産情報はセンチュリー21中央不動産にお任せください!センチュリー21中央不動産では不動産情報を豊富にご用意しております。豊川市 JR飯田線  新築戸建て・中古戸建て・土地・マンションをお探しの方はぜひセンチュリー21中央不動産までお問い合わせください。信頼あるスタッフがあなたのマイホーム探しのお手伝いをさせて頂きます。

PAGE TOP

PAGE TOP